Espace propriétaire
fr

Votre recherche

Barraux (38530)

TERRAIN CONSTRUCTIBLE DE 954 M² PLAT ET LIBRE DE CONSTRUCTEUR – SECTEUR LA GACHE

125 000 €
Ref : MAVTE100000117
Découvrir le bien

Pour découvrir ce bien, un seul contact --> L’agence ALPES INVEST au O6 3O 22 89 55

L’agence ALPES INVEST a le plaisir de vous présenter ce magnifique terrain constructible de 954 m², idéalement situé sur la commune très prisée de BARRAUX, au cœur d’un environnement calme et verdoyant.

Entièrement plat et libre de constructeur, ce terrain offre une excellente exposition ainsi qu’une vue dégagée sur les massifs environnants, réunissant donc toutes les conditions pour concrétiser un projet de vie de qualité.

Vendu en une seule parcelle, il présente néanmoins un fort potentiel d’évolution, avec la possibilité de réaliser ultérieurement une division parcellaire permettant la construction de deux maisons.
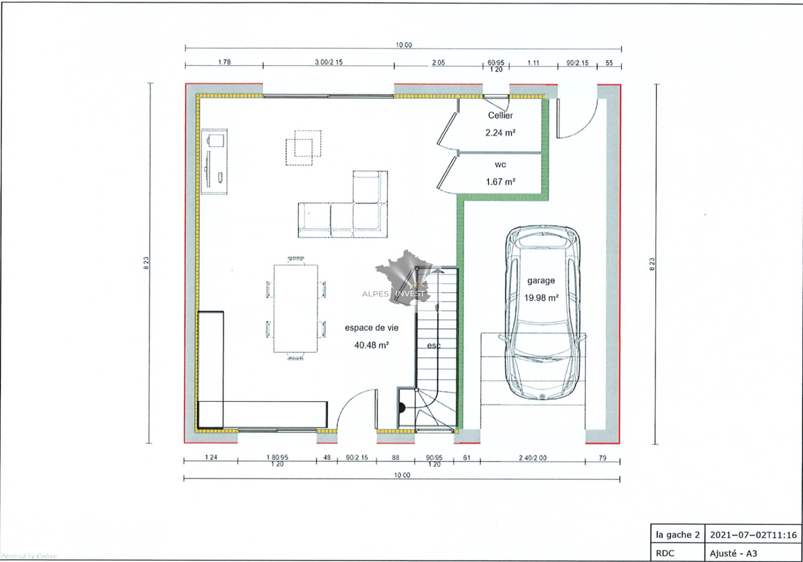
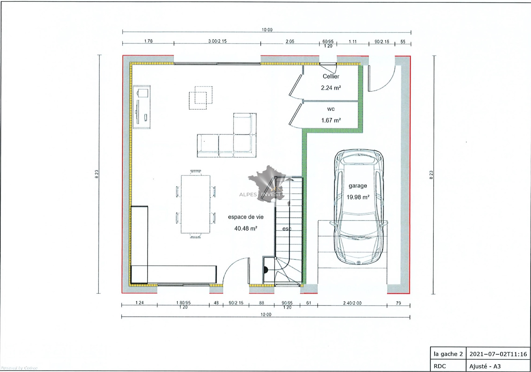
Afin de faciliter votre projection, des plans réalisés par un constructeur sont déjà à disposition.

Caractéristiques techniques :

- Viabilisation : non viabilisé, mais réseaux en bordure du terrain.

- Zone du PLU : zone UB, autorisant l’édification de plusieurs habitations individuelles, de petits collectifs et/ou de bureaux.

- Hauteur maximale autorisée : 10 mètres de haut.

- Coefficient d’emprise au sol : 0,20 soit jusqu’à environ 190 m² de surface de plancher possible.

- Terrain piscinable

Parcelle proposée au prix attractif de 125 000 € (honoraires charge vendeur inclus).

Vous souhaitez en savoir plus ou organiser une visite ?

N’attendez plus, contactez dès maintenant notre conseillère ALPES INVEST, au O6 3O 22 89 55.

TRAD_ZEPHYR_Caracteristique TRAD_ZEPHYR_Valeurs
Code postal 38530
surface terrain 954 m²
Vue Montagnes
Terrain constructible OUI
Surface constructible 190
TRAD_ZEPHYR_Caracteristique TRAD_ZEPHYR_Valeurs
Exposition Sud-Est
Terrain piscinable OUI
Terrain arboré NON
Terrain Viabilisé NON
Terrain divisible OUI
TRAD_ZEPHYR_Caracteristique TRAD_ZEPHYR_Valeurs
Copropriété NON
plan de sauvegarde NON
TRAD_ZEPHYR_Caracteristique TRAD_ZEPHYR_Valeurs
Prix de vente 125 000 €
Les honoraires d'agence seront intégralement à la charge du vendeur  
Contacter pour ce bien
L'agence
Téléphone 0476972094
Adresse
282 Rue Champ Sappey 38570 Crêts en Belledonne

* Champ obligatoire

Les informations recueillies sur ce formulaire sont enregistrées dans un fichier informatisé par La Boite Immo agissant comme Sous-traitant du traitement pour la gestion de la clientèle/prospects de l'Agence / du Réseau qui reste Responsable du Traitement de vos Données personnelles. La base légale du traitement repose sur l'intérêt légitime de l'Agence / du Réseau. Elles sont conservées jusqu'à demande de suppression et sont destinées à l'Agence / au Réseau. Conformément à la loi « informatique et libertés », vous disposez des droits d’accès, de rectification, d’effacement, d’opposition, de limitation et de portabilité de vos données. Vous pouvez retirer votre consentement à tout moment en contactant directement l’Agence / Le Réseau. Consultez le site https://cnil.fr/fr pour plus d’informations sur vos droits. Si vous estimez, après avoir contacté l'Agence / le Réseau, que vos droits « Informatique et Libertés » ne sont pas respectés, vous pouvez adresser une réclamation à la CNIL. Nous vous informons de l’existence de la liste d'opposition au démarchage téléphonique « Bloctel », sur laquelle vous pouvez vous inscrire ici : https://www.bloctel.gouv.fr Dans le cadre de la protection des Données personnelles, nous vous invitons à ne pas inscrire de Données sensibles dans le champ de saisie libre.
Ce site est protégé par reCAPTCHA, les Politiques de Confidentialité et les Conditions d'Utilisation de Google s'appliquent.

Découvrir nos outils